Constructietekening laten maken
Constructietekening laten maken voor uw verbouwing
Een constructietekening laten maken doet u niet omdat het “moet”, maar omdat u zekerheid wilt. Zekerheid dat uw verbouwing veilig wordt uitgevoerd. Zekerheid dat de gemeente uw aanvraag goedkeurt. Zekerheid dat uw aannemer niet tijdens de uitvoering met meerwerk komt.
In de praktijk zien wij regelmatig dat een draagmuur wordt verwijderd zonder constructieve onderbouwing, dat een uitbouw wordt gefundeerd op aannames of dat een dakkapel wordt geplaatst zonder controle van de dakbelasting. De gevolgen worden vaak pas zichtbaar na oplevering: scheurvorming, verzakkingen of onverwachte kosten.
Bij Aannemer Gigant begint een succesvolle verbouwing daarom altijd bij een degelijk constructief rapport. Vanaf €299 ontvangt u een volledig constructief rapport, bestaande uit zowel de constructieberekening als de constructietekening. Daarmee beschikt u over een technisch onderbouwd plan dat voldoet aan de regelgeving én direct uitvoerbaar is op de bouwplaats.
Constructietekening van een fundering. Visuele weergave voor de gemeente die het moet beoordelen en voor aannemers die het gaan bouwen.
Wat is een constructietekening precies?
Een constructietekening is de technische uitwerking van de dragende delen van uw verbouwing. De constructeur berekent eerst volgens de Eurocodes welke belastingen optreden. Hierbij worden permanente belastingen, zoals eigen gewicht van vloeren en daken, gecombineerd met veranderlijke belastingen zoals gebruiksbelasting, sneeuw en wind.
De resultaten van deze berekeningen worden vervolgens vertaald naar een duidelijke bouwtekening. Op de constructietekening ziet u onder andere de posities van stalen liggers, kolommen, funderingen, balklagen en stabiliteitswanden. Ook opleglengtes, verankeringsdetails en maatvoering worden exact vastgelegd.
Waarom eerst een constructietekening laten maken?
Wanneer u offertes aanvraagt zonder constructietekening, moeten aannemers zelf inschatten welk staalprofiel nodig is, hoe zwaar de fundering moet worden uitgevoerd en hoe krachten worden afgedragen. De ene aannemer rekent ruim, de andere scherper. Dat maakt offertes moeilijk vergelijkbaar en vergroot het risico op meerwerk.
Laat u eerst een constructietekening maken, dan liggen alle technische uitgangspunten vast. Iedere aannemer werkt met dezelfde constructieve gegevens. Hierdoor kunt u offertes eerlijk vergelijken en houdt u grip op uw bouwbudget. Dat is het moment waarop onzekerheid verandert in controle.
Twee voorbeelden constructietekeningen
Op de voorbeelden hierboven ziet u hoe dit er in de praktijk uitziet: stalen kolommen met voetplaten, IPE- of HEA-liggers bij een draagmuurdoorbraak en funderingsstroken met belastingwaarden in kilonewton. Dit zijn geen globale schetsen, maar uitvoeringsdocumenten waarmee uw aannemer direct kan werken.
Constructietekening laten maken voor een aanbouw of uitbouw
Bij een aanbouw of uitbouw wordt vaak een dragende achtergevel doorbroken. Dat betekent dat de belasting van de bovenliggende verdieping moet worden opgevangen door een nieuwe staalconstructie.
Daarnaast moet de fundering van de uitbouw voldoende draagkracht hebben. In de funderingstekeningen worden daarom exacte afmetingen, betonkwaliteit, wapening en belastingwaarden vastgelegd. Zo wordt voorkomen dat de aanbouw op termijn verzakt of scheurt. Dit wordt samen met de constructieberekening aanbouw een constructief rapport.
Een doordacht ontwerp kan bovendien materiaal besparen, wat direct effect heeft op de totale bouwkosten.
Constructietekeningen zonnepanelen. Dit is een onderdeel uit het constructierapport waarin werd berekend of er zonnepanelen op het dak mochten.
Constructietekening bij het verwijderen van een draagmuur
Wanneer u een draagmuur wilt verwijderen, wordt een essentieel onderdeel van de draagstructuur aangepast. Op de constructietekening wordt exact aangegeven welk staalprofiel nodig is, wat de opleglengte moet zijn en hoe de krachten worden afgevoerd naar kolommen of bestaande wanden.
Daarnaast wordt gecontroleerd of de fundering de nieuwe puntbelasting kan opnemen. Zonder deze onderbouwing loopt u risico op scheurvorming of ongelijkmatige zettingen.
Constructietekening voor dak, dakkapel of nokverhoging
Bij een dakkapel, plat dak of nokverhoging wordt de bestaande dakconstructie beoordeeld op extra belasting en doorbuiging. Ook windbelasting en bevestiging tegen opwaaien spelen een belangrijke rol. Kijk hier voor de constructietekeningen.
Onze constructietekeningen
Constructietekening dakkapel
Wat zijn de kosten en hoe ziet een dakkapel constructietekening eruit?
Constructietekening lessenaarsdak
Wat zijn de kosten en hoe ziet een lessenaarsdak constructietekening eruit?
Constructietekening lessenaarsdak
Waarom moet dit gebeuren en wat zijn de kosten?
Klik hier voor meer informatieConstructietekening uitbouw
Wat zijn de kosten en hoe ziet een uitbouw constructietekening eruit?
Constructietekening uitbouw
Waarom moet dit gebeuren en wat zijn de kosten?
Klik hier voor meer informatieConstructietekening plat dak
Wat zijn de kosten en hoe ziet een plat dak constructietekening eruit?
Constructietekening aanbouw
Wat zijn de kosten en hoe ziet een aanbouw constructietekening eruit?
Constructietekening aanbouw
Waarom moet dit gebeuren en wat zijn de kosten?
Klik hier voor meer informatieConstructietekening carport
Wat zijn de kosten en hoe ziet een carport constructietekening eruit?
Constructietekening carport
Waarom moet dit gebeuren en wat zijn de kosten?
Klik hier voor meer informatieOp detailtekeningen worden verankeringen, gordingversterkingen en aansluitingen zorgvuldig uitgewerkt. Hiermee voorkomt u dat de nieuwe dakconstructie gaat werken of problemen veroorzaakt in het bestaande dakvlak.
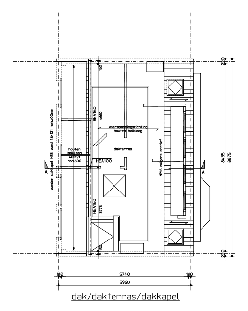
Constructietekening voor een dak en dakterras
Wat kost een constructietekening laten maken?
Veel opdrachtgevers zoeken op “wat kost een constructietekening”. De kosten zijn afhankelijk van de complexiteit van uw verbouwing en de hoeveelheid benodigde berekeningen.
Bij Aannemer Gigant starten de kosten vanaf €299. Dit betreft een volledig constructief rapport, inclusief constructieberekening en constructietekening. U ontvangt dus geen losse schets, maar een technisch onderbouwd document waarmee u kunt bouwen en waarmee u, indien nodig, een vergunning kunt aanvragen.
Grotere projecten zoals een dakopbouw of uitgebreide uitbouw vereisen meer rekenwerk en detaillering, maar blijven een relatief kleine investering ten opzichte van de totale bouwsom.
Gemeente, verzekering en verantwoordelijkheid
Wanneer uw verbouwing vergunningsplichtig is, moet de gemeente de constructieve stukken beoordelen. Een correcte constructietekening versnelt dit proces aanzienlijk.
Daarnaast bent u als eigenaar verantwoordelijk voor de veiligheid van uw woning en eventuele schade aan derden. Met een goed constructief rapport toont u aan dat u zorgvuldig en volgens de geldende normen hebt gehandeld.
Constructietekening laten maken bij Aannemer Gigant
Bij Aannemer Gigant combineren wij constructieve kennis met uitvoeringspraktijk. Wij ontwerpen niet alleen wat technisch mogelijk is, maar vooral wat efficiënt en veilig gebouwd kan worden.
Onze constructeurs werken dagelijks aan aanbouwen, uitbouwen, draagmuurdoorbraken, dakkapellen en dakconstructies. Dankzij deze praktijkervaring weten wij waar optimalisaties mogelijk zijn zonder concessies te doen aan veiligheid.
Wilt u zekerheid vóórdat de uitvoering start? Dan is dit het juiste moment om uw constructietekening te laten maken.
Vragen over een constructietekening
Wat is het verschil tussen een constructietekening en een bouwtekening?
Een bouwtekening richt zich op indeling en architectuur. Een constructietekening beschrijft specifiek hoe de dragende delen veilig worden uitgevoerd en hoe krachten worden afgedragen.
Is een constructietekening verplicht bij een uitbouw?
Bij vergunningsplichtige uitbouwen is een constructieve onderbouwing doorgaans vereist. Ook bij vergunningsvrije situaties is het sterk aan te raden wanneer dragende onderdelen worden aangepast.
Wat kost een constructietekening gemiddeld?
De kosten starten vanaf €299 voor een volledig constructief rapport. De exacte prijs hangt af van de omvang en complexiteit van het project.
Hoe lang duurt het maken van een constructietekening?
Gemiddeld bedraagt de doorlooptijd enkele weken, afhankelijk van de complexiteit en volledigheid van de aangeleverde gegevens.
Kan een bestaande constructietekening van mijn woning worden opgevraagd?
Ja, in veel gevallen zijn originele tekeningen beschikbaar via het gemeentearchief. Deze vormen een belangrijke basis voor nieuwe berekeningen.
Waarom is alleen een berekening niet voldoende?
Een berekening toont aan dat de constructie voldoet aan de normen. De tekening vertaalt deze berekening naar maatvoering en details voor de uitvoering. Beide documenten zijn nodig voor een veilige realisatie




